We rely on good data to lead us to valuable insights.
We research, analyze and verify a broad range of information to deliver exceptional final results. In real-time work sessions, we partner with our clients step by step to ensure that we’ve covered all the bases to make their investment the best it can be.
Our expertise covers a wide range of solving real estate problems, including those encountered in leasing, acquisition, disposition and development for office, multi-family residential, light industrial, mixed-use, retail, urban infill, suburban corridors and specialized uses.
An example of our analytic capabilities is our Property Development Assessment, which we prepare either for ourselves when we analyse a development opportunity, or for property owners.
PROPERTY DEVELOPMENT ASSESSMENT (PDA)
A Property Development Assessment (PDA) is a written analysis we prepare for you that determines the development potential and development value of your property, in order to answer 3 major questions most property owners have:
1. How developable is my property?
2. How much will it be worth, developed?
3. What's next?
Property Assessment
We begin with a thorough site analysis, looking at existing available information, including surveys, rent rolls, existing building plans, zoning, and adjacent context and activity.
Development Potential
Between our development experience and what is allowed under zoning, we conceptualize the 'highest and best' development yield for your property, that is realistic, data-driven, and actionable.
Developable Value
Our PDA culminates in a written report that is custom-tailored to each property. Generally, a PDA consists of:
- Massing study and physical parameters
- Development economics (pro forma and financial model)
- Developer opinion of value
- Development vs. disposition
- Other hold or exit strategies
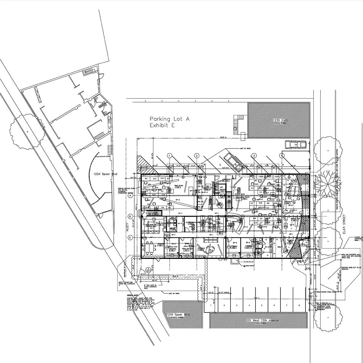
EXAMPLE PROJECT: 1215 ELATI and 1224 SPEER
